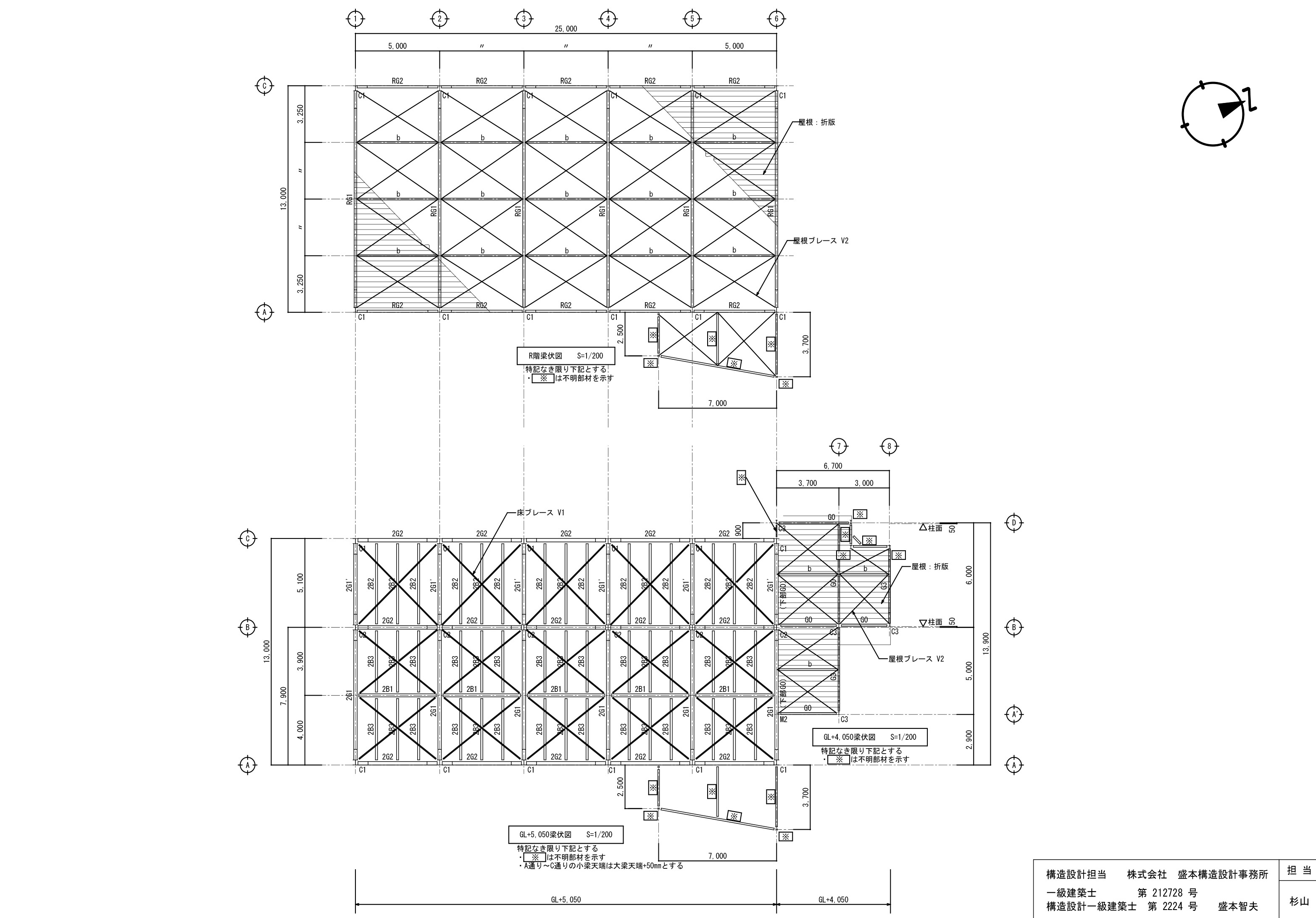
株式会社 盛本構造設計事務所
構造設計実績 / 図面DRAWING CASE
実績カテゴリー |

K製作所
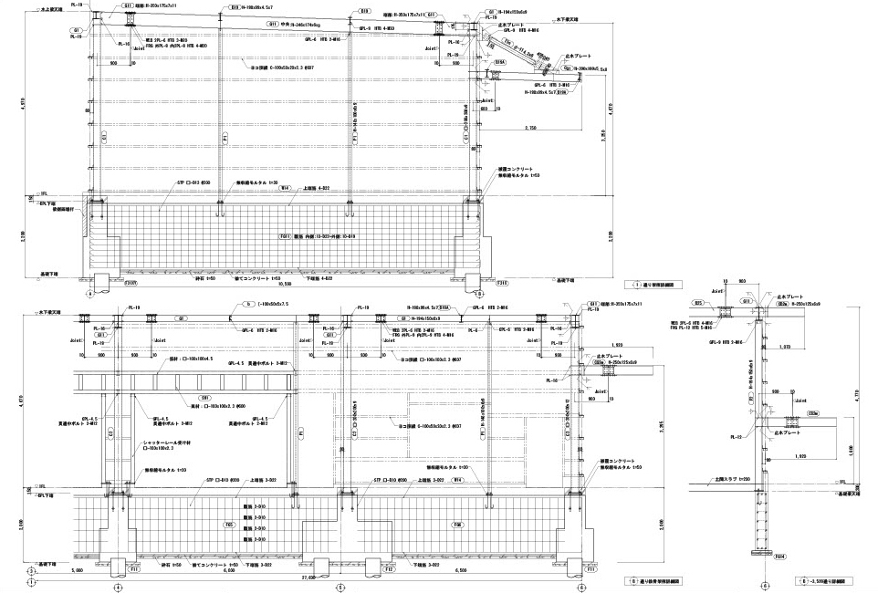
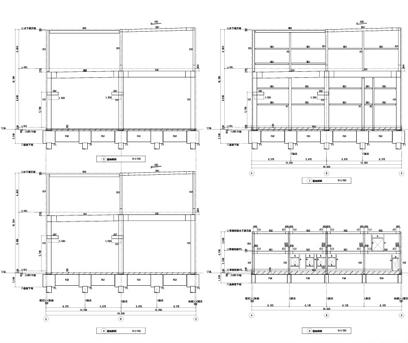
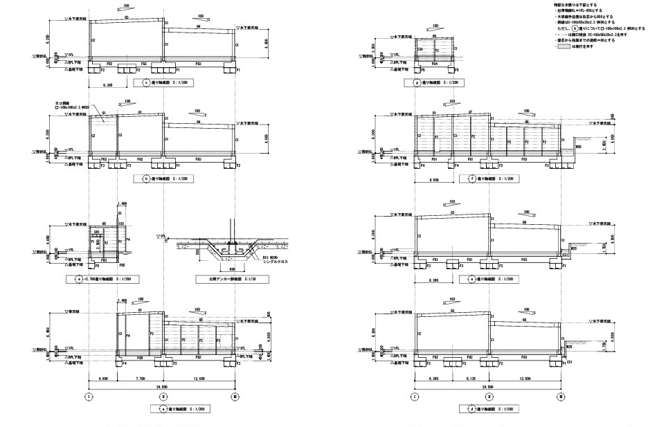
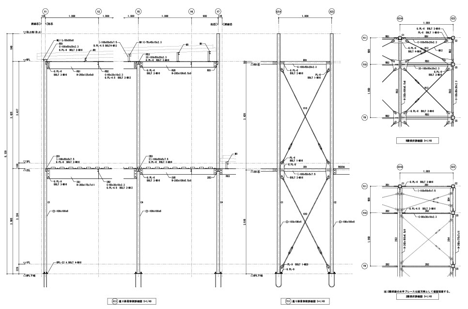
鉄骨造平屋建 2,000㎡

F安城工場
鉄骨造2階建 2,760㎡

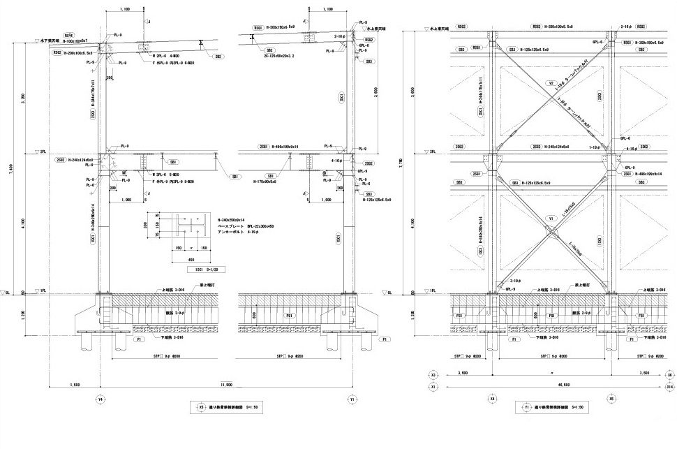
V耐震診断
壁式鉄筋コンクリート造4階建 950㎡

S乳業
鉄骨造2階建 750㎡

M名古屋工場
鉄骨造2階建 2,530㎡

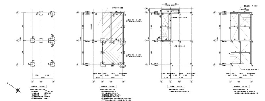
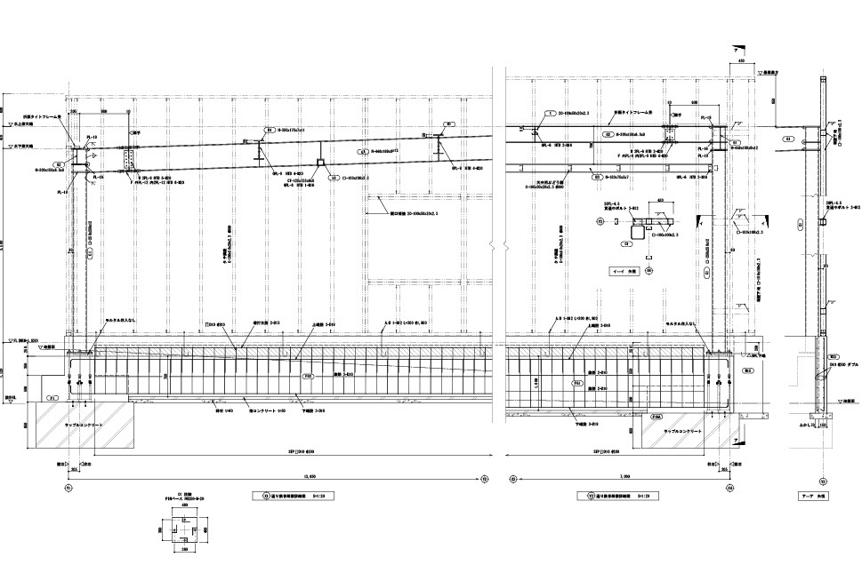
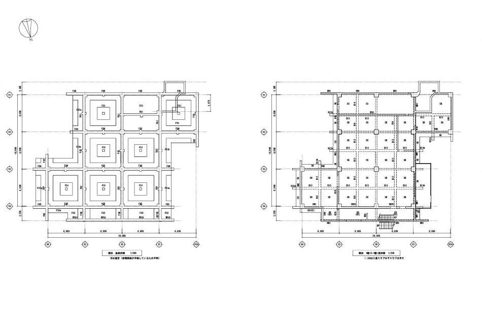
N上田工場渡り廊下
鉄骨造平屋建 200㎡

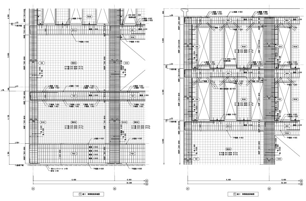
N市K中学校
鉄筋コンクリート造3階建 8,920㎡

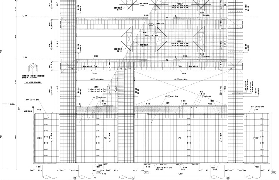
N市N町小学校
鉄筋コンクリート造3階建 4,720㎡

S小学校
鉄筋コンクリート造4階建 7,240㎡

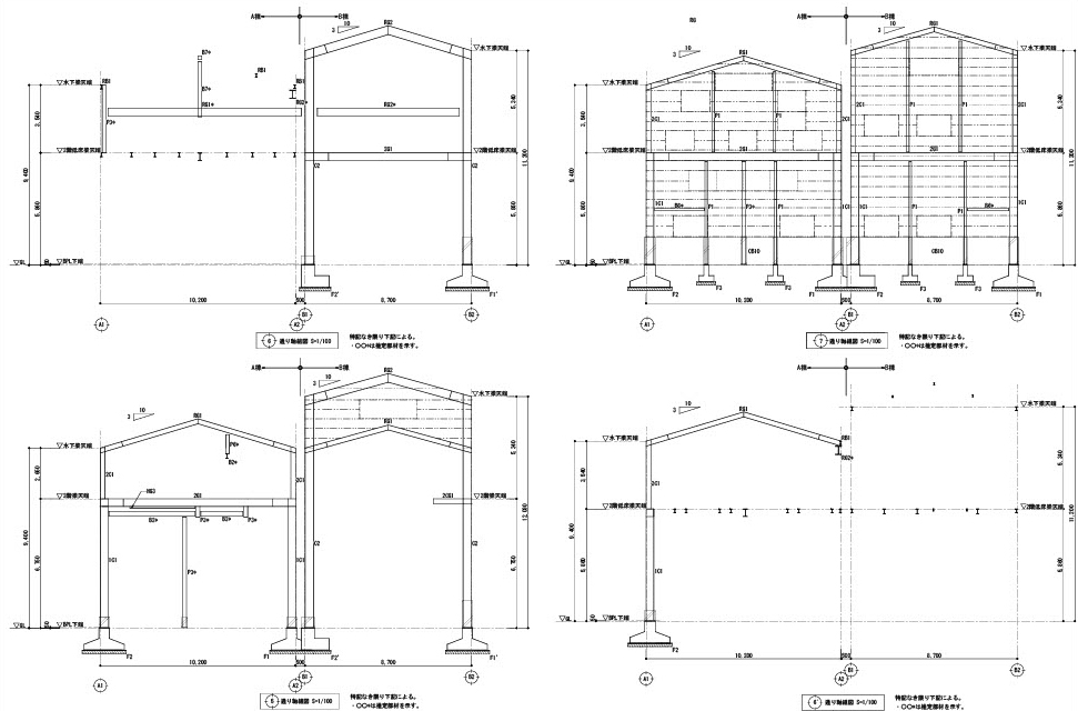
A体育館
鉄骨造平屋建 1,030㎡

S住宅
鉄筋コンクリート造4階建 4,350㎡

M工業所
鉄骨造平屋建 1,020㎡

T図書館
鉄筋コンクリート造2階建 1,590㎡

N給食センター
鉄骨造2階建 2,770㎡

O株式会社 工場
鉄骨造平屋建 590㎡

Y三重工場
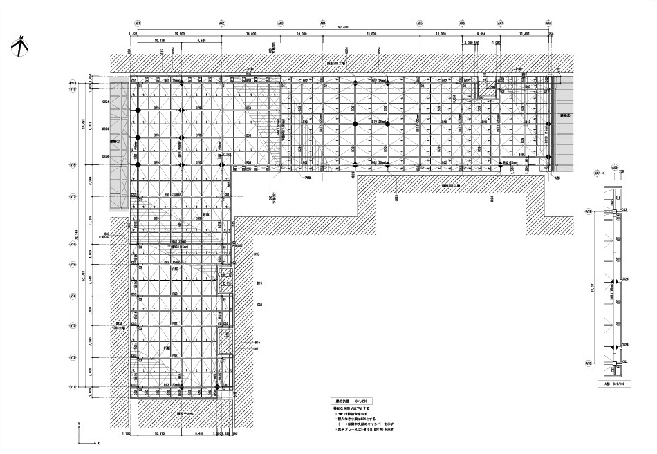
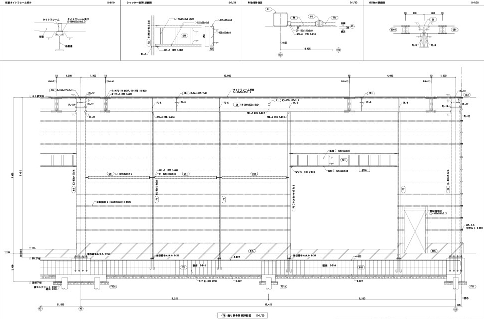
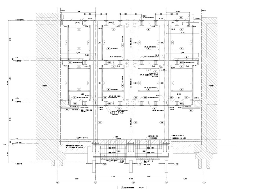
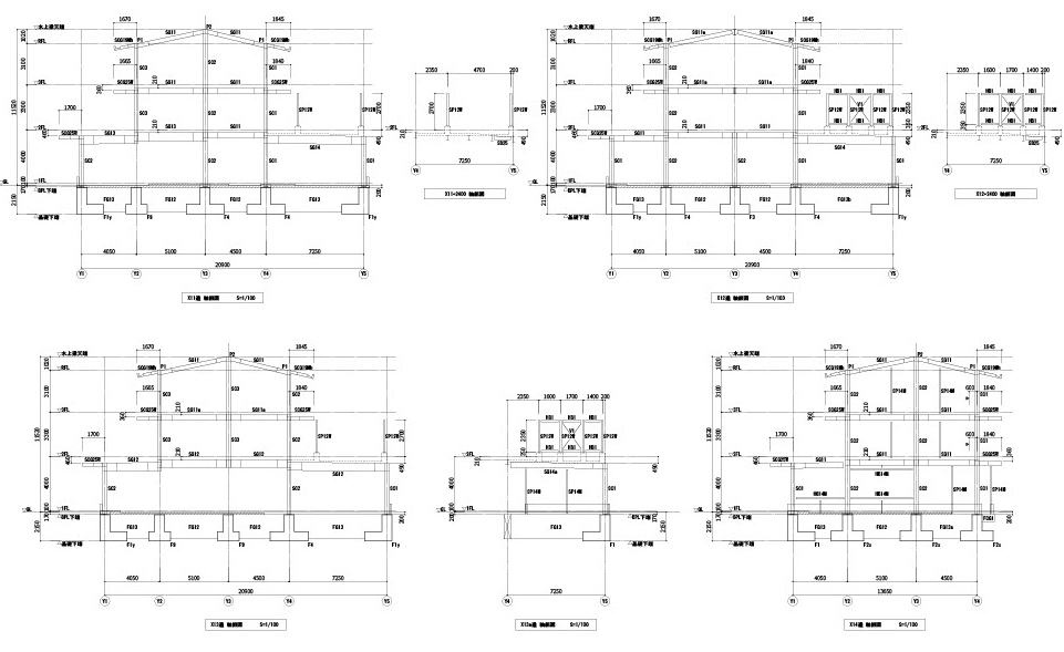
鉄骨造平屋建 8,000㎡

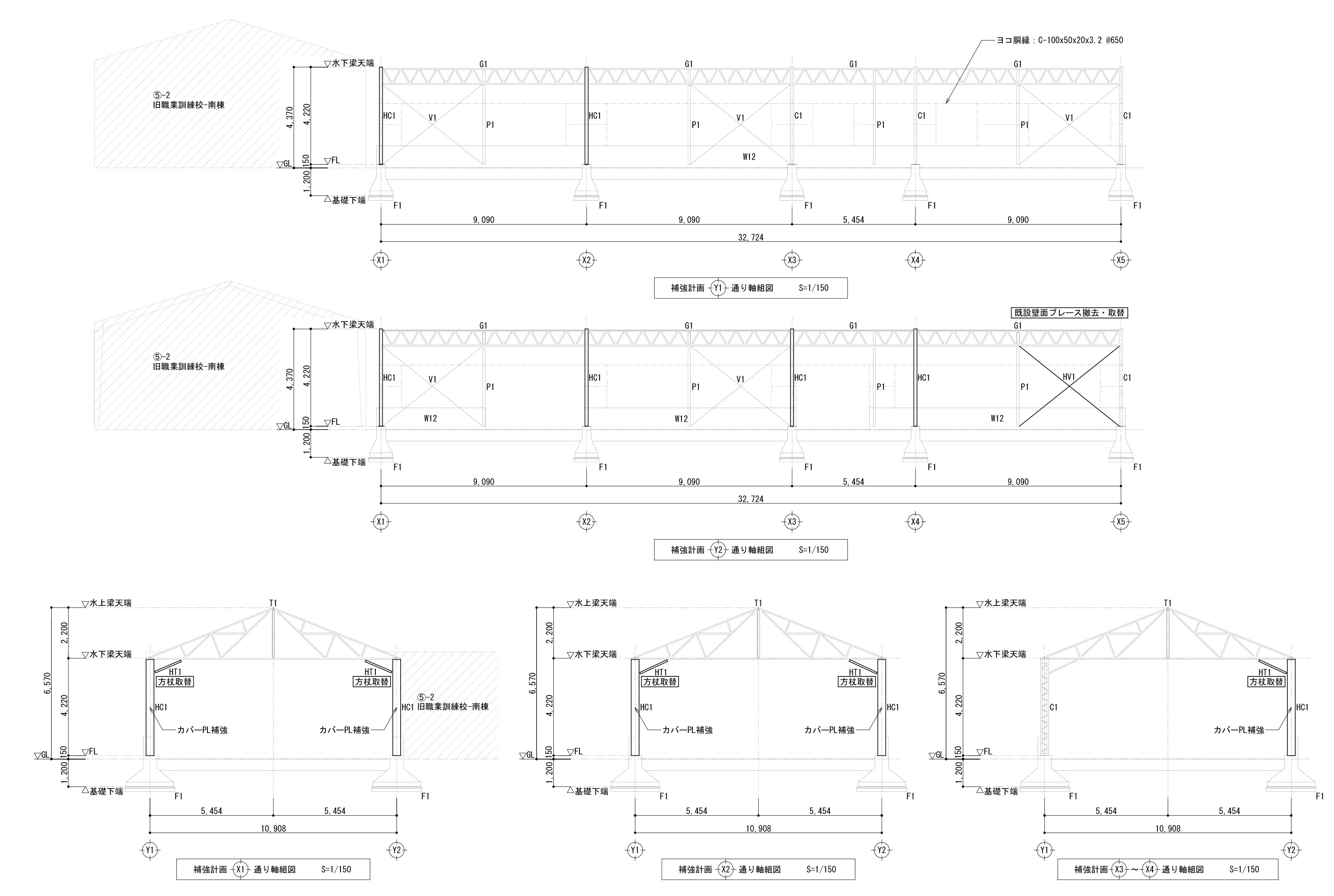
T中学校リニューアル
鉄骨造4階建 230㎡

K東部中学校
鉄筋コンクリート造4階建 2,540㎡

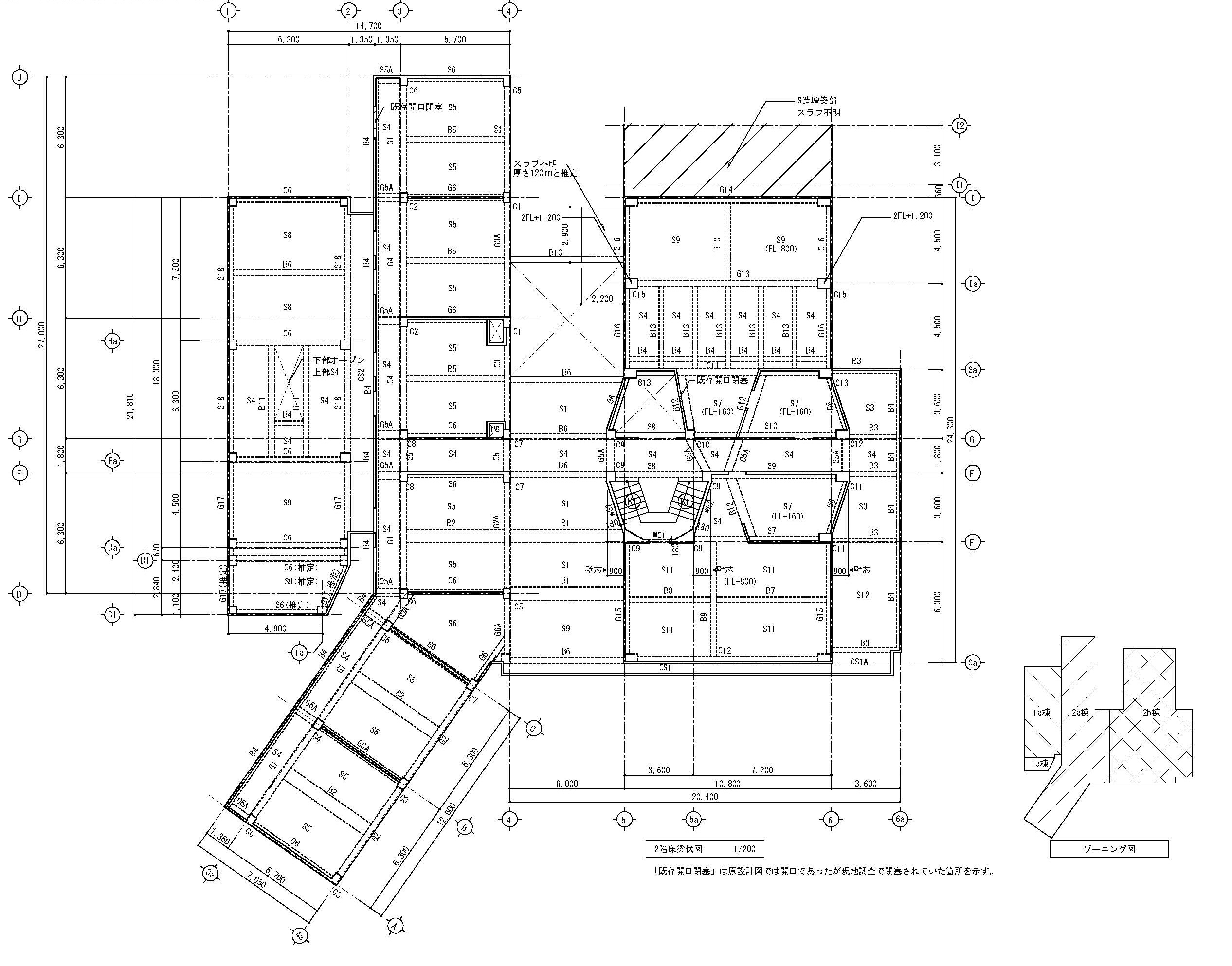
N一丁目再開発
鉄骨造52階建 370,000㎡

K市A公園
鉄骨造2階建 3,680㎡

Oタウン
鉄骨造2階建 4,280㎡

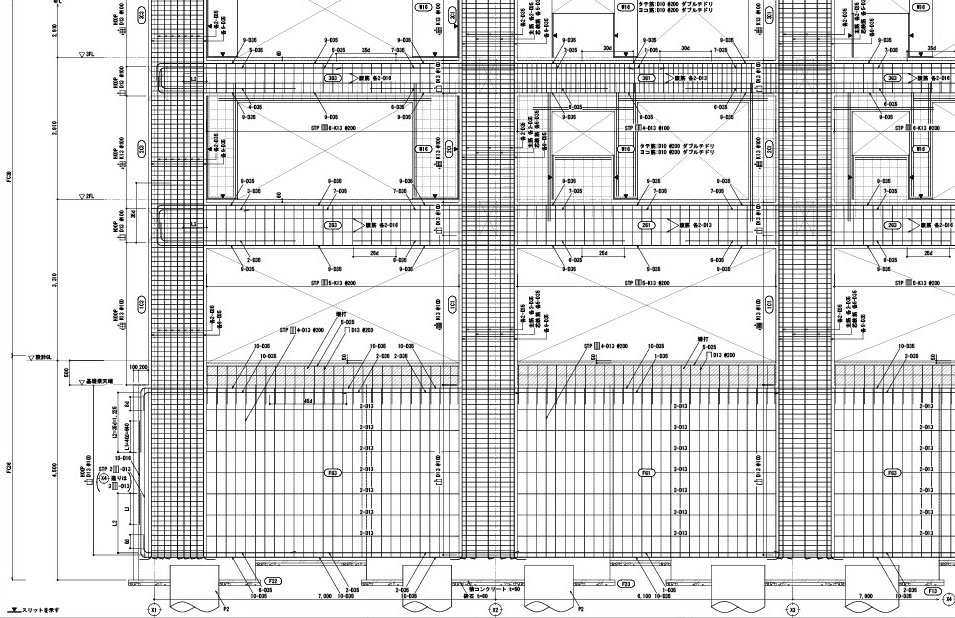
N大手町別館
鉄骨造11階建 41,200㎡

N知多事業所
鉄骨造平屋建 53,190㎡

S加工工場
鉄骨造2階建 8,500㎡

N大学8号館
鉄筋コンクリート造4階建 1,970㎡

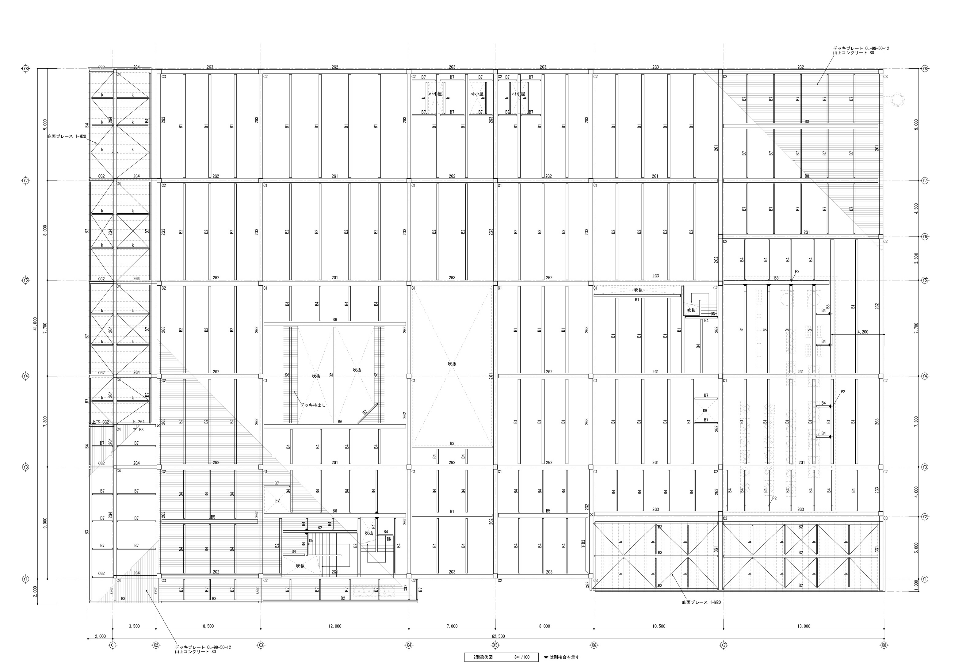
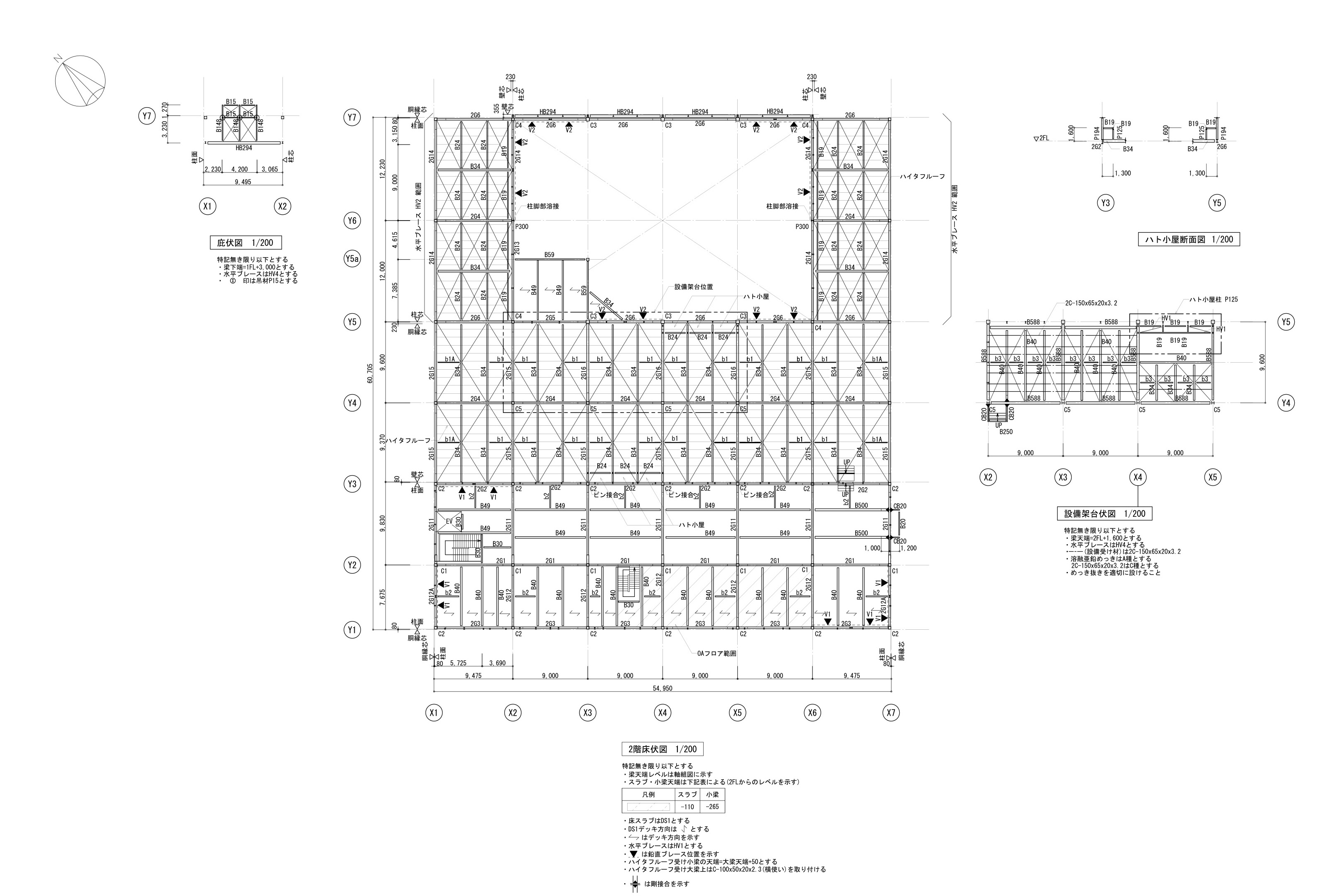
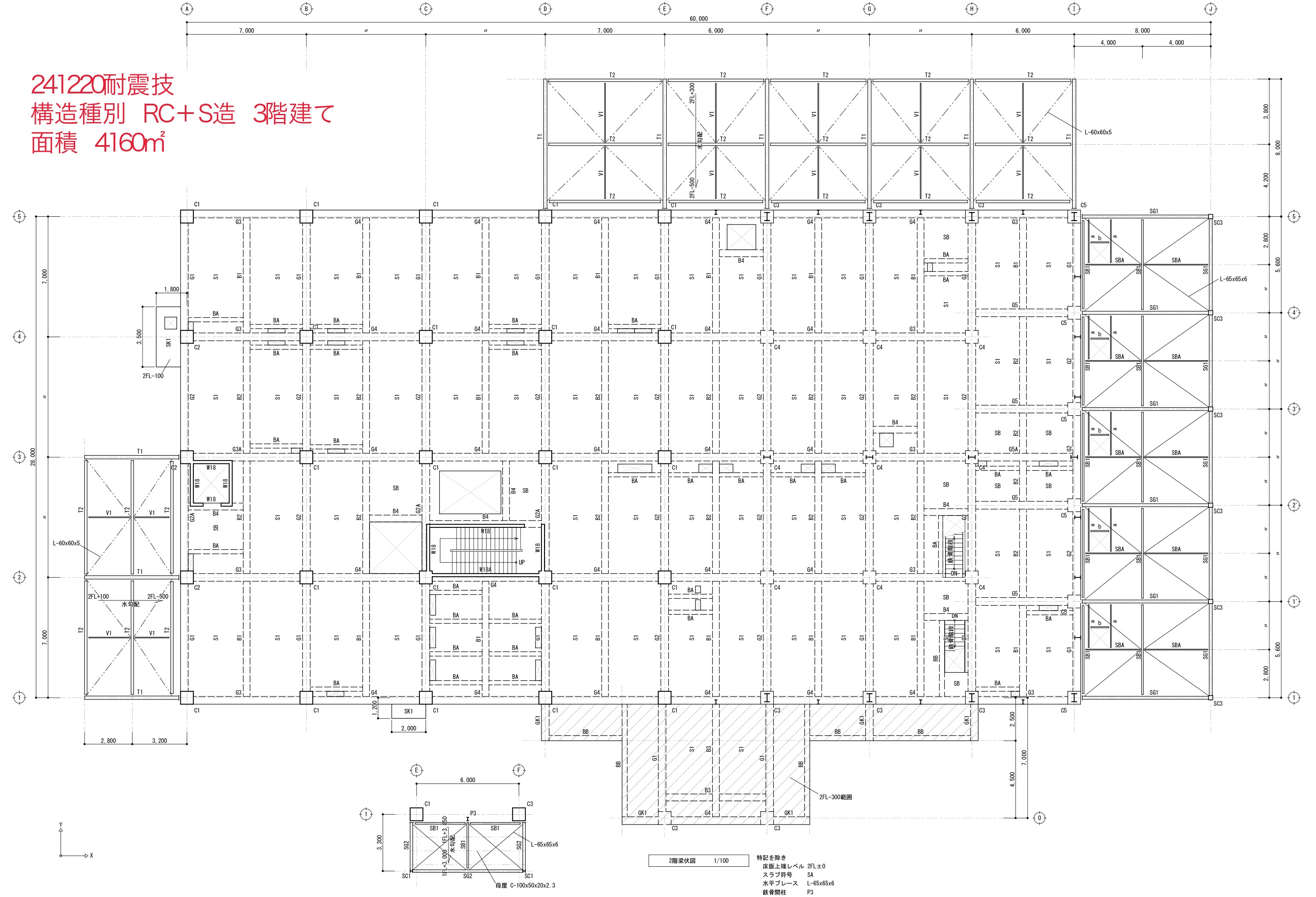
S糖化工場
鉄筋コンクリート造+鉄骨造3階建 4,160㎡

Kハイツ
鉄骨鉄筋コンクリート造10階建 2,980㎡

N精機工場
鉄骨造2階建 2,600㎡

K産業足助工場
鉄骨造平屋建 1,800㎡

N精密
鉄骨造平屋建 3,000㎡

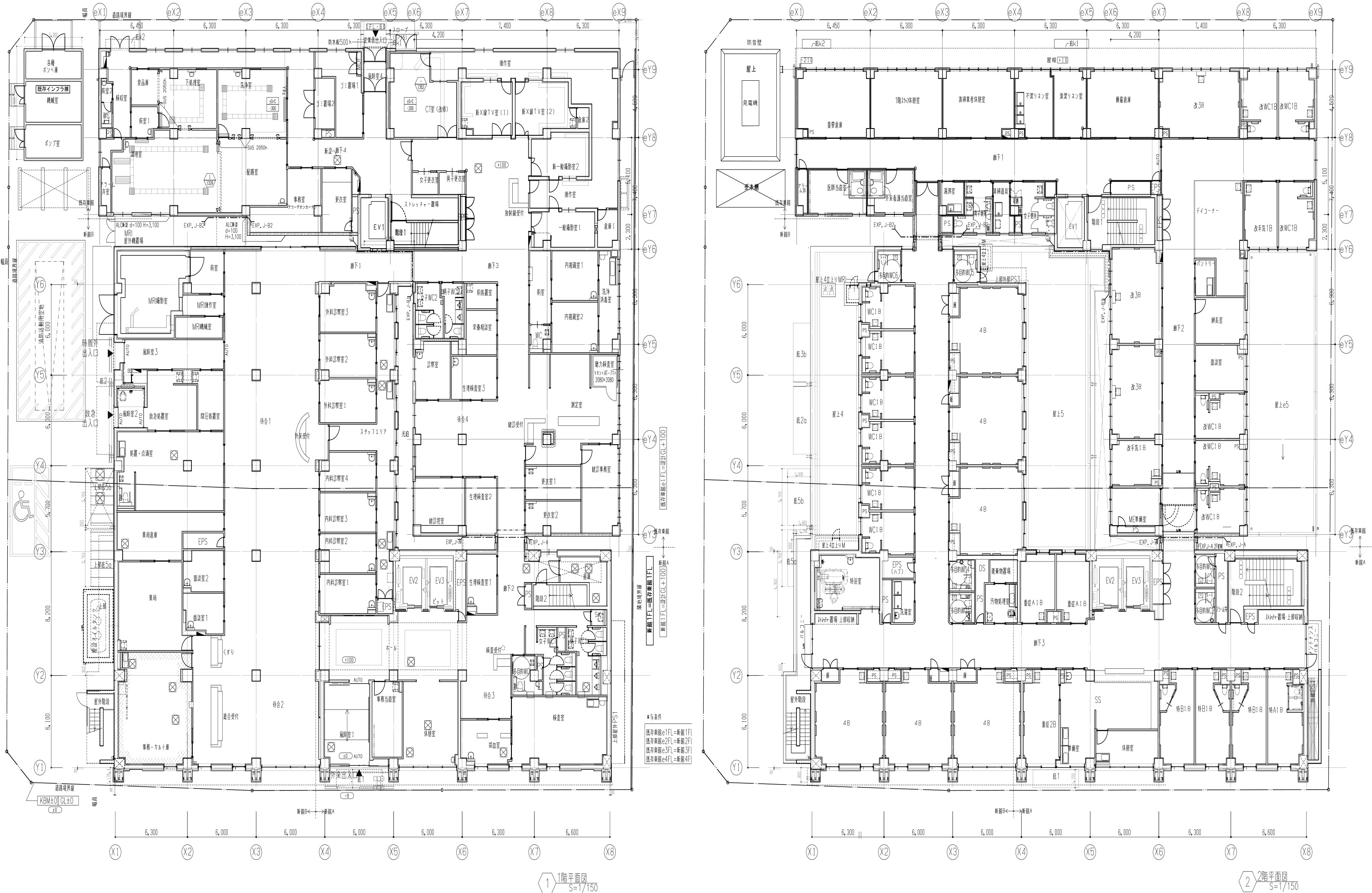
I病院
鉄骨造10階建 30,000㎡

K第一病院
鉄筋コンクリート造6階建 8,420㎡

N岐阜製作所
鉄骨造平屋建 9,700㎡

ビジネスホテルT駅前
鉄筋コンクリート造6階建 2,230㎡

M岡崎工場
鉄骨造2階建 15,000㎡

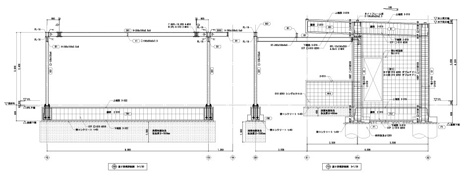
H倉庫新築工事
鉄骨造平屋建 480㎡

Uガイダンス施設
鉄筋コンクリート造平屋建 200㎡

T工業北棟
鉄骨造平屋建 360㎡

E北野
鉄筋コンクリート造5階建 2,500㎡

L安城
鉄骨造3階建 113,000㎡

Tプレス工場
鉄骨造2階建 5,260㎡

T紡織大口工場 太陽光パネル設置検討
鉄骨造平屋建 11,520㎡

J花園工場
鉄骨造平屋建 8,500㎡

I有料老人ホーム
木造2階建 1,640㎡

Tスポーツセンター照明塔
鉄骨造 8.64㎡

M愛知事業所
鉄骨造4階建 1,880㎡

A第2工場
鉄骨造平屋建 6,000㎡

O住宅
鉄筋コンクリート造6階建 2,500㎡

K味噌甲子蔵
木造平屋建 740㎡

Kビル
鉄筋コンクリート造5階建 1,320㎡

A産業機器工場
鉄骨造平屋建 1,560㎡
MORIMOTOStructural design office株式会社 盛本構造設計事務所
-

岡崎本社
〒444-0076
愛知県岡崎市井田町1-8-1
TEL 0564-23-0550
FAX 0564-23-7438 -

東京支社
〒103-0027
東京都中央区日本橋3-8-2
新日本橋ビルディング8階
TEL 03-3272-2208
FAX 03-6262-6322 -

大阪支社
〒531-6133
大阪府大阪市北区大淀中1-1-30
梅田スカイビル タワーウエスト33階
TEL 06-6940-7600
FAX 06-6940-7650 -

名古屋支社
〒460-0008
愛知県名古屋市中区栄2-10-19
名古屋商工会議所ビルディング8階
TEL 052-218-5077
FAX 052-218-5088
会社概要
会社沿革
業績
社員紹介
社内行事
企業理念
会社カレンダー
当社の特徴
採用情報
インターンシップ
インタビュー